place
Наши филиалы: Жлобин

2 комнатная квартира

Продажа Гомель, Юбилейная, 1

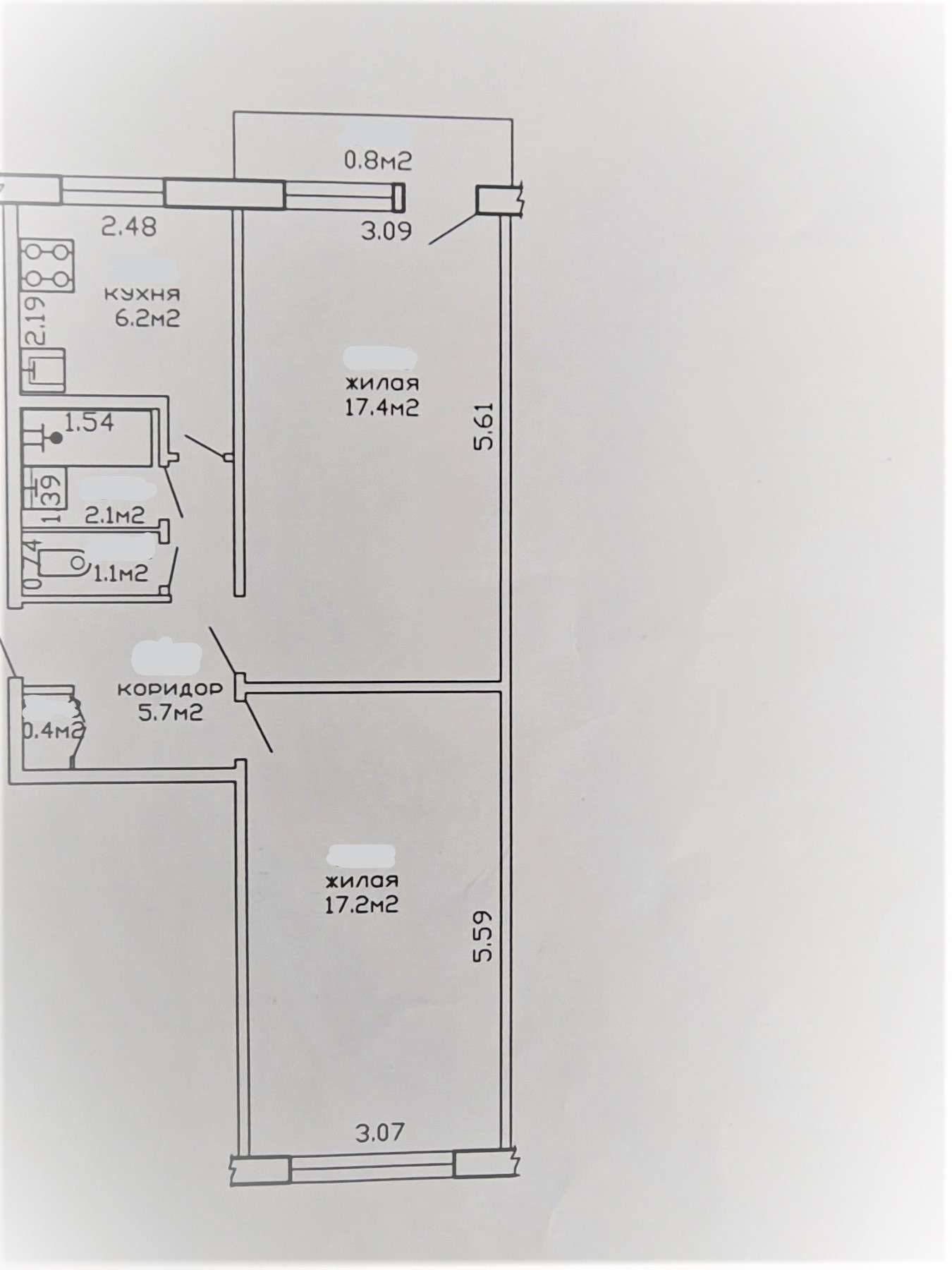
Предлагается к продаже двухкомнатная квартира в панельном доме 1970 года постройки по адресу: г. Гомель, ул. Юбилейная, дом 1. Общая площадь квартиры составляет 50,1 м.кв., комнаты изолированные, санузел раздельный, есть застеклённый балкон. Квартира требует ремонта, что позволит сделать дизайн и отделку по своему вкусу. Установлены пластиковые окна, центральное отопление и газоснабжение.

Дом расположен в районе с развитой инфраструктурой.

Документы готовы к сделке, один собственник.

118 192.00 BYN 40 000.00$ 2 359.11 BYN/м2 798.40$/м2
Предложить свою цену
Заполните телефон!
Введите цену или отметьте галочкой "Консультация по кредиту"
Нажимая "Отправить" я даю согласие на обработку персональных данных
Область
Гомельская область
Район области
Гомельский
Район
Железнодорожный
Микрорайон
Старый Аэродром
Кол-во комнат квартиры
2
Кол-во раздельных комнат
2
Площадь(О/Ж/К)
50.10/34.60/6.20
Этаж
1/5
Год постройки
1970
Материалы дома
Панель
Ремонт
Косметический
Балконы
Балкон застеклен: 1
Сан. узел (кол-во)
Раздельный: 1
Высота потолка
2.5
Номер и дата договора
136/18 от 25-08-2025
Посмотреть на карте